賃貸
【成約済】三浦海岸駅前ビル
- 住所
- 神奈川県三浦市南下浦町
- 交通
- 京急久里浜線 三浦海岸駅 徒歩1 分
- 間取り / 面積
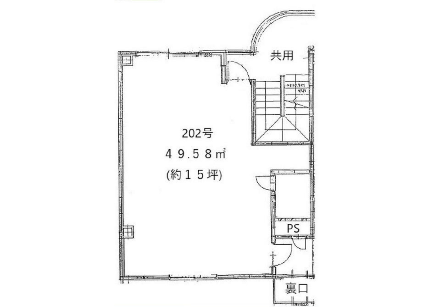
- 1R / 49.58㎡
- 想定収容人数
- ー
- 賃料 / 管理費
- 155,000円 / 5,000円
- 敷金 / 礼金
- ー / 1ヶ月
物件ID:5693
三浦海岸は夏季の海水浴客を中心に、年間を通じて観光需要の高いエリアです。特に夏は宿泊施設が不足しやすく、民泊はホテルや旅館の代替として高い稼働率が期待できます。また春の河津桜まつりやマリンスポーツ、釣り、サイクリングなど四季を通じた観光資源が豊富で、観光客にとって魅力的な拠点になります。駅前徒歩1分の立地はアクセス性に優れ、旅行者が気軽に利用しやすいため集客力の強い物件といえます。
駅前立地による高い利便性◎
物件は京急久里浜線「三浦海岸駅」から徒歩1分という好立地にあります。都心から直通電車でアクセスできるため、週末旅行や日帰りプランとの組み合わせに最適です。駅前に位置しているため、コンビニや飲食店、バス交通など生活利便性も整っており、観光客や長期滞在者に安心感を与えます。アクセスと利便性の両立は、予約サイト掲載時の強力なアピールポイントとなり、幅広い層に選ばれる可能性が高まります。
スケルトン物件の自由度と差別化
スケルトン物件であるため、49.58㎡の空間を民泊運営に合わせて自由に設計できる点が大きな強みです。例えば海辺のリゾート感を演出した内装や、少人数向けの落ち着いた空間デザインにすることで、他の宿泊施設との差別化が可能です。また清掃や管理のしやすさを意識した内装にすることで、運営効率を高めることもできます。駅前という立地と組み合わせることで「選ばれる民泊」として安定した収益性を確保できるでしょう。
物件詳細
- 物件名
- 【南下浦町】駅前ビル
- 賃料(税込)
- 155,000円
- 敷金
- ー
- 礼金
- 1ヶ月
- 管理・管理費
- 5,000円
- 物件種別/構造
- 鉄骨造陸屋根3階建
- 所在階/階数
- 2階/3階建階
- 戸数
- ー
- 間取り
- 1R
- 部屋番号/向き
- ー
- 専有面積
- 49.58㎡
- 築年月
- 1990年7月
- 保証金
- 1,000,000円
- 更新料
- 新賃料の1ヶ月
- 仲介手数料
- 賃料の1ヶ月
- その他費用
- ー
- 契約期間
- 2年
- 引き渡し
- 相談
- 現状
- 空室
- 取引形態
- 普通借家契約
- 備考
- ・用途地域:近隣商業地域
・保証会社・火災保険:要加入
・駐車場なし
【新規設置済み】
温 水 洗 浄 便 座 ・ ミ ニ キ ッ チ ン ・ ト イ レ
床 ( 塩 ビ タ イ ル ) ・ 照 明 器 具
・諸条件ご相談下さい
・民泊事業の申請に伴う法令関係事項や書類は、
お客様にて事前に準備・ご確認ください
・複数申込が入った場合は、保証会社承認の上、
貸主及び管理会社審査での選考となります
※条件が変更となる場合があります
※現状と図面に相違がある場合は、現状を優先いたします
アクセス
MINPAKU CHINTAIの特徴
収益性のある物件のみを掲載
民泊物件に精通した実績のあるプロが、収益性の高い物件だけを選び抜いて掲載しています。
契約までスピーディーに対応
バンケッツで仲介が可能なため、物件の契約までスピーディーに対応すること可能です。
豊富な民泊運営ノウハウ
バンケッツの関連会社が民泊管理事業を行っているため、民泊に関するノウハウが豊富です。そのため、物件契約後のサポートも可能です。
【成約済】三浦海岸駅前ビル
| 賃貸物件 種別 鉄骨造陸屋根3階建 | 物件名 【南下浦町】駅前ビル | 号室 ー 号室 | 間取 1R | 賃料(税込) 155,000 円 |
【成約済】三浦海岸駅前ビル |
|||||||||||||||||||||||||||||||||||||||||||||||||||||||||
物件写真
物件間取図
|
|
||||||||||||||||||||||||||||||||||||||||||||||||||||||||
| 東京都知事(1)第110548号 株式会社バンケッツ 150-0001 東京都渋谷区神宮前2丁目18番19号theFolksBYIOQ3階 定休⽇:土・日・祝 / 12:00〜18:00 E-mail minpakuchintai@gmail.com |
TEL: / FAX: 03-6369-3738
|
||||||||||||||||||||||||||















