賃貸
【成約済】武蔵小山で始める「一棟貸し」
- 住所
- 東京都品川区小山5丁目
- 交通
- 東急目黒線 「武蔵小山駅」 徒歩6分
- 間取り / 面積
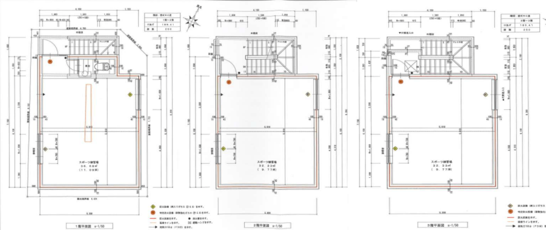
- 1R / 107.84㎡
- 想定収容人数
- ー
- 賃料 / 管理費
- 1,067,000円 / ー
- 敷金 / 礼金
- ー / 1ヶ月
物件ID:5808
駅チカ一棟貸し!最高の目立ち度✨
最大の強みは、東急目黒線「武蔵小山駅 徒歩6分」という立地です 。しかも、1〜3階のまるごと一棟貸し!看板の視認性が良好なのが大きな強みです。宿の存在をしっかりアピールしたい方にぴったりですよ!民泊ゲストは駅近を重視しますし、ビル全体を独占できるので、プライベート感や広さを求めるファミリーやグループ旅行客の集客に有利です!
自由な空間設計を叶える広々32坪超!
107.84㎡(32.62坪)という広大なスペースを、完全に民泊専用として自由にレイアウトできます 。各フロアに複数の客室を設けたり、共有スペースを充実させたりと、自由自在にデザインできますよ!
初期費用の負担軽減!「礼金なし」でスタートダッシュ!
初期費用は抑えたいですよね。この物件は、賃貸条件に礼金が設定されていません 。また、造作譲渡代も「無償残置」なので、ゴルフ設備を撤去する費用はかかりますが、居抜き物件として余計な造作譲渡費を支払わずに済みます 。初期の資金を設備投資や内装工事に回せるのは大きなメリットです!
物件詳細
- 物件名
- 【小山5丁目】賃店舗・事務所
- 賃料(税込)
- 1,067,000円
- 敷金
- ー
- 礼金
- 1ヶ月
- 管理・管理費
- ー
- 物件種別/構造
- 鉄筋コンクリート造1-3階(外階段)
- 所在階/階数
- 1-3階/3階建階
- 戸数
- ー
- 間取り
- 1R
- 部屋番号/向き
- ー
- 専有面積
- 107.84㎡
- 築年月
- ー
- 保証金
- 4,000,000円
- 更新料
- 新賃料の1ヶ月
- 仲介手数料
- 賃料の1ヶ月
- その他費用
- ー
- 契約期間
- 4年間
- 引き渡し
- 相談
- 現状
- 居住中
- 取引形態
- 定期借家契約
- 備考
- ・用途地域:第一種住居地域
・現況:1Fシュミレーションゴルフ
・造作譲渡代無償:残置
・契約満了日:2029年9月26日
・光・電話回線、BGM利用時 指定業者
・指定火災保険・家賃保証会社 加入必須
・償却賃料1ヶ月分(別途消費税)
・再契約料:新賃料の1.5ヶ月分
・民泊事業の申請に伴う法令関係事項や書類は、
お客様にて事前に準備・ご確認ください
・複数申込が入った場合は、保証会社承認の上、
貸主及び管理会社審査での選考となります
※条件が変更となる場合があります
※現状と図面に相違がある場合は、現状を優先いたします
アクセス
MINPAKU CHINTAIの特徴
収益性のある物件のみを掲載
民泊物件に精通した実績のあるプロが、収益性の高い物件だけを選び抜いて掲載しています。
契約までスピーディーに対応
バンケッツで仲介が可能なため、物件の契約までスピーディーに対応すること可能です。
豊富な民泊運営ノウハウ
バンケッツの関連会社が民泊管理事業を行っているため、民泊に関するノウハウが豊富です。そのため、物件契約後のサポートも可能です。
【成約済】武蔵小山で始める「一棟貸し」
| 賃貸物件 種別 鉄筋コンクリート造1-3階(外階段) | 物件名 【小山5丁目】賃店舗・事務所 | 号室 ー 号室 | 間取 1R | 賃料(税込) 1,067,000 円 |
【成約済】武蔵小山で始める「一棟貸し」 |
|||||||||||||||||||||||||||||||||||||||||||||||||||||||||
物件写真
物件間取図
|
|
||||||||||||||||||||||||||||||||||||||||||||||||||||||||
| 東京都知事(1)第110548号 株式会社バンケッツ 150-0001 東京都渋谷区神宮前2丁目18番19号theFolksBYIOQ3階 定休⽇:土・日・祝 / 12:00〜18:00 E-mail minpakuchintai@gmail.com |
TEL: / FAX: 03-6369-3738
|
||||||||||||||||||||||||||











